The OSU BCM is building it’s next home

And we’d love for you to be a part

of what God is doing in Stillwater!

For almost 100 years, the OSU BCM has been home to bold evangelism, deep discipleship, missions mobilization and student leadership development! We’re so excited to build a premiere collegiate ministry facility that will not only help us continue this ministry, but launch it to new heights!

Paul Lewis | OSU BCM Director | 2021 - Present

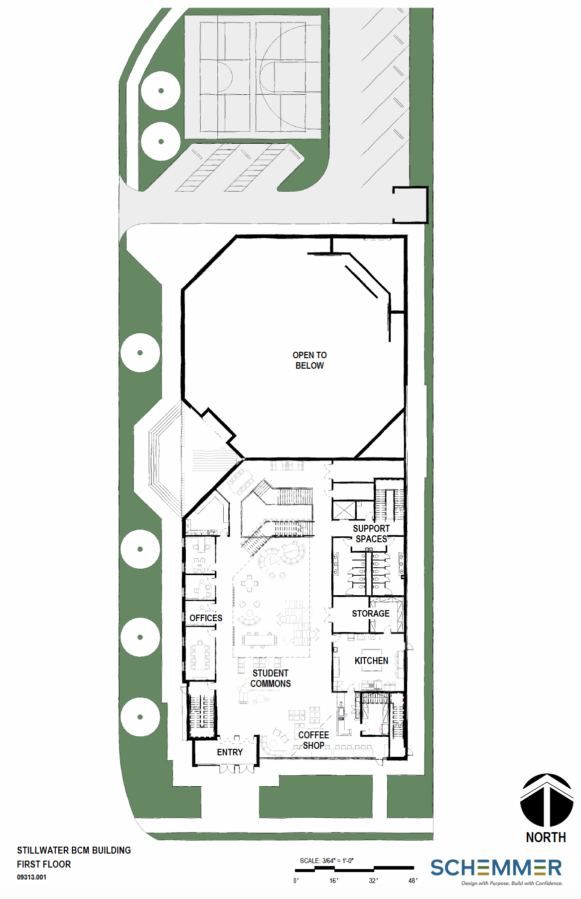
We are launching a campaign to build a new 30,000 square foot ministry facility located strategically near the heart of student housing! This new space will include:

  • An auditorium for worship, teaching, and outreach events.

  • A full kitchen for meals and hospitality.

  • Bible study and discipleship rooms.

  • Staff offices and support space.

  • On-site apartments for ministry interns.

  • Plenty of space for students to gather, hang out, and find gospel-centered community.

Check out a fly-through of the facility!

Without a home for the past decade, we are thriving but limited. A place to call home will allow us to:

  • Reliably host our weekly gatherings adjacent to campus and right next to the vast majority of student housing.

  • Connect with and minister to new students.

  • Provide a central place for students to gather, study, disciple, and build community. And maybe even play some ping pong.

  • Increase our capacity to raise up and send students into the world.

Will you join us in raising the $16 million dollars needed to build and furnish this home?

Give Now